Многие семьи не имеют места, чтобы организовать детям лазанье в комнате. Ремонт уже готов, мебель куплена и кажется, что некуда (или не на что) внедрять какие-то изменения. А дети зимой оказываются заперты в квартире и двигаться им очень хочется. Возникает резонный вопрос про коридор. Можно ли организовать лазанье в коридоре? Как это сделать? Будет ли оно интересным? Ответ как правило положительный. Со своими нюансами. Мы любим и умеем делать комплексы для коридоров, но мы прошли для этого большой эволюционный путь. И в маленьком, казалось бы, проекте вложено много лайфаков и хитростей, не очевидных непосвященному взгляду. Но с вами мы поделимся. Итак. Секреты организации лазательного пространства в коридоре. На примере московского комплекса. Мастер изготовления этого комплекса - Привалов Евгений, мастера установки - Павел Сардыко и Александр Новиков. Они собрали многолетние наработки всей команды в этом изящном и аккуратном исполнении.
Проектирование комплекса в коридоре. Лучше проходная часть, чем тупик. Но есть только тупик, отодвинемся от стены



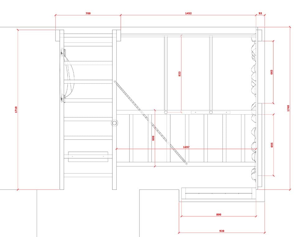
Мы помним, из методологии детского лазанья, что главное в спортивном комплексе - раскачивающиеся снаряды. Коридор - это как правило узкое длинное помещение (до 1,7-1,8 метров по ширине, бывает, что 1,3-1,5 метра). То есть оно будет на раскачивание работать вдоль, причем, чтобы снаряды не мешали друг другу, их придется вешать со значительными интервалами (исключение - коридоры по принципу "полосы препятствий"). И мы уйдем от их системной работы. В идеале - отодвинуться от тупиковой стены (здесь примерно на 2,2 метра) и задействовать проемы, если они есть, чтобы что-то из снарядов работало в другой плоскости. Если это удалось - вуаля - мы имеем комплексно работающую систему лазанья в ограниченном пространстве. Делаем снаряды на стенах максимально высокими и плоскими (чтобы не забирать объем). Делаем рукоходы максимально высокими (чтобы дать амплитуду). Учитываем открывание дверей и проемы. И вот - наш проект готов.
Если стены - гипсокартон?



Вы уже возможно поняли (планируя свою зону или изучая материалы нашего сайта), что для организации детского лазанья гипсокартон - зло. Он удорожает всю систему. Вот как и здесь. Две стены из трех были гипсокартонные. И гипсокартонный потолок. Хуже такого сочетания только ГКЛ стены + натяжной потолок, это еще неудобнее. А с ГКЛ потолком можно обойтись просто. Все стойки комплекса, которые ставятся к ГКЛ стенам, ставятся враспор пол-потолок, используется бетонная часть потолка, в которую проходит крепежный элемент из металла через ГКЛ. Здесь это показано на примере стоек для шведской стенки и стоек для скалодрома. Скалодром в таком случае приходится делать на каркасе.
Если в коридоре есть ниша


В отличие от шкафов ниши спортивному комплексу помогают мало. Если ниша плоская (всего 150 мм как здесь), то мы помещаем в нее какой-нибудь из пристенных снарядов. Понимая, что если ниша срезана по высоте, то и снаряд будет работать с ограничениями. Если бы ниша была глубокая, тут можно было бы разместить стеллаж для хранения и он не мешал бы лазанью. Обратите внимание, из основных пристенных снарядов - скалодрома, шведской стенки и гладиаторской сети - мы выбрали для ниши последнюю Чтобы не ограничивать функциональность двух первых. Есть и плюс. Стойки гладиаторской сети спрятались и не будут источником столкновений. Все в дом!
На что сделать ставку в коридоре. Главные акценты








Если мы имеем дело с детьми, особенно маленькими (до подросткового возраста) главный акцент всегда на том, что раскачивается. Лучшее место для йога-гамака. Йога-гамак - царь детских спортивных комплексов. Ему нужно +/- 2 метра свободными вперед и назад. И если в комнате мы идем иногда на компромиссы и сокращаем это расстояние до 1,5 метров, то в коридоре - нет. Именно 2 метра. Чтобы ребенок летал свободно до полусолнца. Прицип сохранения гармонии простой - забрали что-то (в данном случае - объем), сохраните амплитуду и высоту. Второй амплитудный снаряд здесь - качель и третий, работающий с ограничениями - трапеция (поперек коридора 1,7 м., вспомогательный снаряд). Не обязательно расставить именно такие акценты. Можно дать больше свободны трапеции, а качель убрать, с ограничением навесить кольца. Но нужно хотя бы два снаряда, которые будут работать без компромиссов. И еще что-то в качестве связки и что-то, работающее по диагонали. Здесь - канат и лиана. Обратите внимание, что снаряды по стенам сделаны максимально плоско. Идеальны для таких случаев скалодромы, пегборды, скалолазные полочки и фингерборды по периметру. Что-то, не забирающее объем. Шведская стенка одна, чуть в стороне. Она "дорогая" для ширины коридора - требует аж 150 мм. В этом коридоре мы можем себе это позволить, он 1,7 метров. В других может оказаться тесно, тогда ее место должно считаться так, чтобы не мешать йога-гамаку.
Про великую пользу проемов


Часто коридоры бывают с поворотами. Здесь более широкий коридор с тупиком (где комплекс) граничит с более узким. Это характерно. Если разместить амплитудный снаряд на границе, то качель сможет качаться поперек широкого коридора в сторону узкого. Этот маленький снаряд даст огромную пользу лазанью, ведь он выводит лазанье из линии и превращает его в систему. Иногда, когда проемов нет, их создают искусственно. Например, снимают дверь или присоединяют лоджию, или даже не возводят (убирают) участок стен, мы готовим к публикации такие примеры по организации пространства детских комнат, они необыкновенные. А вот ситуация со стыковкой двух коридоров - довольно типичная и не требует ничего снимать. Здесь использована именно она.
Нюансы. Как металл работает на всю систему





Здесь есть две хитрости, которые существенно улучшат лазанье и которые вы не поймешь с нуля, если не наблюдаешь детское лазанье год за годом. Что нужно было разместить в простенке между шведской стенкой и рукоходом? Вариантов несколько. Можно было пегборд, он довольно плоский, но это снаряд для продвинутых. А для начинающих? Сделаем систему турников. Вдоль стены два горизонтальных турника на разных высотах. Конечно, на них не кувыркнешься (для этого нужно установить турник в проем и мы работаем над такой связкой). Но на них можно делать много всего другого. Переходить со снаряда на снаряд по стене, вывешиваться (умеючи - даже вниз головой) и использовать их как танцевальный станок. Верхние турники - для подтягиваний. Поскольку потолок в квартире низкий и рукоходы подняты максимально вверх, чтобы сохранить высоту лазанья, турники для подтягиваний слегка снижены. И вот получилась нестандартная, но функциональная подсистема.

Подводим итог. Коридоры прекрасны для лазанья. В квартирах, решенных в монохромной гамме или в скандинавском стиле, комплекс для лазанья в коридоре встраивается в общий интерьер. Для этого могут быть использованы любые цвета. В данном случае - белый и натуральное дерево. Каждый снаряд для коридора продумывается со всей тщательностью и так, чтобы он работал и не мешал другим. Сильная сторона коридора - длина, поэтому важно дать снарядам высоту и амплитуду. Удачи вам в ваших проектах и внедрениях, господа и будем рады придумать что-то для вас и с вами вместе!